Caudéran
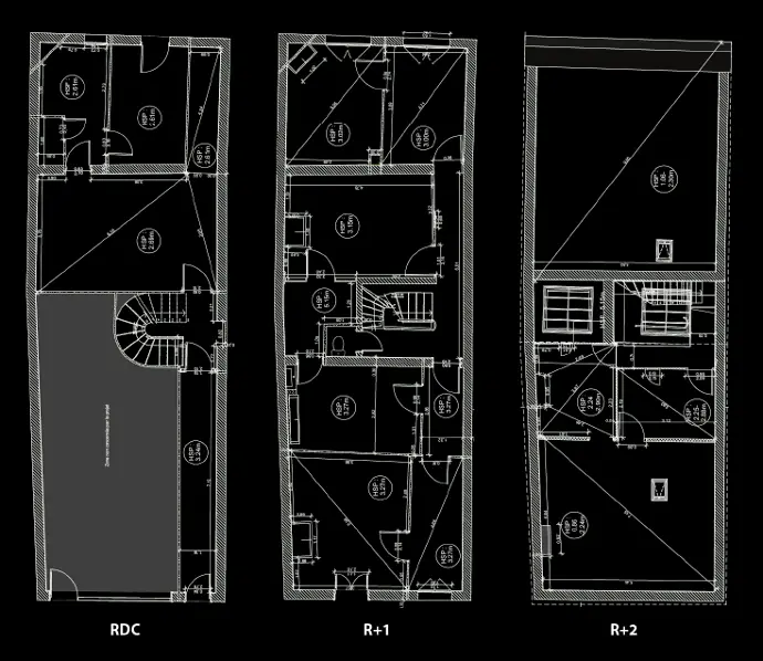
Etat de l'Existant :


Ramené l’extérieur à l’intérieur pour créer un espace ayant sa propre identité, sa propre fonction, son univers, afin de créer une ambiance naturelle et apaisante, qui offre une expérience immersive stimulant les sens.

Brève description du concept :
La lumière joue un rôle crucial dans la création d’ambiances et d’atmosphères spécifiques dans un environnement.
Elle peut être utilisée pour mettre en valeur des éléments, comme dans un musée, pour créer des effets visuels saisissants ou pour évoquer des émotions particulières.
Une pièce très lumineuse offerte donc une toile de fond idéale pour exprimer des concepts, raconter une histoire visuelle et captiver.
Images de synthèse du projet :
Projet Caudéran : durée : 3 mois / 2023
Equipe de projet : Gaïa Reyneri, Manon Berder, Emma Blanquet




